美原工業の全保有車両を紹介致します。
トレーラー
16輪ステアリング装置付伸縮低床マルチトレーラー
寸法図
運ぶ物の高さが高くて、長さが長い荷物も荷台を自由自在に変形させる事により運搬物を分解する事なく、一体のままで運送を可能と致します。
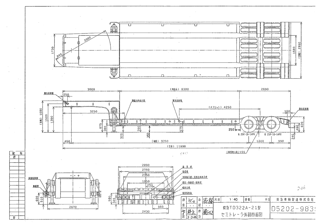
低床トレーラー
ショート
21t積
寸法図
低床トレーラー
幅2990
32t積
寸法図
低床トレーラー
幅3200
35t積
寸法図
高床トレーラー
フラット
24t積
寸法図
中低床トレーラー
49t積
寸法図